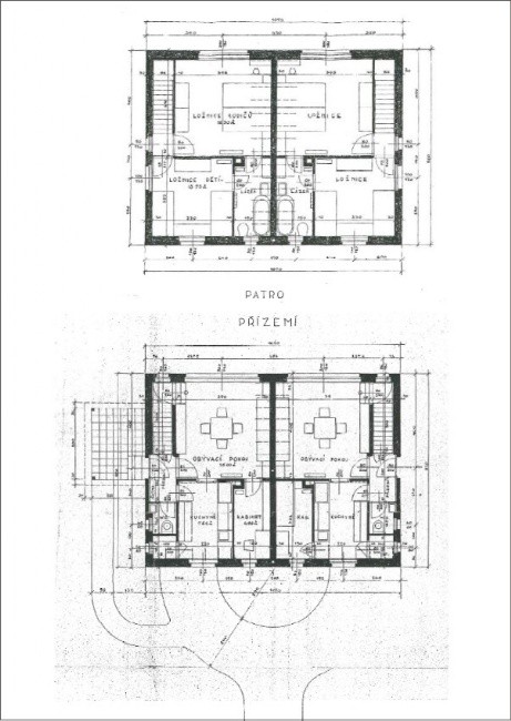
Vzorový rodinný dům, mezinárodní soutěž, 1935
Autor: Antonín Vítek, 1935
Kolonie U Lomu
Jeden ze čtyř realizovaných rodinných domů, oceněných v mezinárodní architektonické soutěži, vypsané firmou Baťa v r. 1935 (jedním z porotců byl francouzský architekt Le Corbusier). V soutěži šlo o nalezení dalších typů firemních domků. I když se žádný z oceněných objektů sériového provedení nedočkal, jsou dnes právem řazeny mezi několik evropských expozic moderního bydlení. Dům zlínského architekta Antonína Vítka získal v soutěži 4. cenu. Z oceněných návrhů je nejvíce spojen se zlínskou obytnou výstavbou a nejlépe také zapadá do logiky jejího vývoje.
Volně stojící rodinný dvojdům, umístěný na svazích Barabáše v jižním výběžku centra baťovského Zlína, je součástí komorního obytného souboru ohraničeného lesem. Zatravněná zahrada je vymezena pouze živými ploty s minimálními zásahy do rostlého terénu.
Objekt je od roku 1958 zapsán na Seznam nemovitých kulturních památek.
Aplikace Mobilní rozhlas
Chcete dostávat do svého mobilu či mailu upozornění na blížící se nebezpečí, odstávky, poruchy a výpadky energií, ankety, pozvánky na kulturní a sportovní akce?
© 2026 Magistrát města Zlína
všechna práva vyhrazena
Podněty k webovým stránkám
Kontakt: webmaster@zlin.eu
Podněty k webovým stránkám
Kontakt: webmaster@zlin.eu

Registruj se k odběru novinek
Zaregistrujte svou e-mailovou adresu k pravidelnému odběru aktuálních informací z našeho webu