Bytové domy
Autor: Ing. arch. Jiří Voženílek
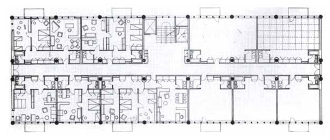
V letech 1945 -1950 byl realizován ve středu města dvanáctipodlažní Kolektivní dům, jeden ze dvou v Československu (druhý je v Litvínově od architektů Linharta a Hilského), jehož koncepce dále rozvíjí myšlenku započatou na Morýsových domech. Byty o vysokém standardu lze upravit variabilními příčkami, jsou vybaveny jen kuchyňskými boxy, umístěnými stejně jako ostatní příslušenství uvnitř dispozice a uměle osvětlené a odvětrávané. V přízemí je restaurace, klubovny, na rekreační terase tělocvična. Jesle a mateřská škola jsou ve zvláštním přízemním křídle, přístupné suterénem budovy. V objektu je 26 třípokojových bytů o obytné ploše 55 - 62 m2 a 76 dvoupokojových bytů o ploše 39 m2. Konstrukčně se jedná o monolitický železobetonový skelet. Byl to první pokus o realizaci nových forem bydlení. Objekt je vyzrálou konstruktivistickou architekturou poválečného období.
V prostorách bývalé restaurace, později vysokoškolské menzy, nacházelo inspiraci mnoho umělců, výtvarníků, architektů, bylo to místo setkávání studentů a vyhlášená taneční kavárna nabízela zábavu i odpočinek.
V roce 2003 byl v těchto prostorách otevřen Nový kulturní institut pod názvem Alternativa.
Prostor o výměře 270 m2 je nabízen ke kulturním, vzdělávacím i společenských aktivitám. Možnosti využití objektu jsou velmi široké. Dispozice již sama předurčuje využití na výstavní činnost, pořádání módních přehlídek, divadel malých forem, komorních vystoupení, hudebních produkcí, literárních a autorských večerů, filmových klubů.
Objekt je od roku 1958 zapsán na Seznam nemovitých kulturních památek.
Aplikace Mobilní rozhlas
Chcete dostávat do svého mobilu či mailu upozornění na blížící se nebezpečí, odstávky, poruchy a výpadky energií, ankety, pozvánky na kulturní a sportovní akce?
© 2026 Magistrát města Zlína
všechna práva vyhrazena
Podněty k webovým stránkám
Kontakt: webmaster@zlin.eu
Podněty k webovým stránkám
Kontakt: webmaster@zlin.eu

Registruj se k odběru novinek
Zaregistrujte svou e-mailovou adresu k pravidelnému odběru aktuálních informací z našeho webu