Bytové domy
Autor: Miroslav Lorenc
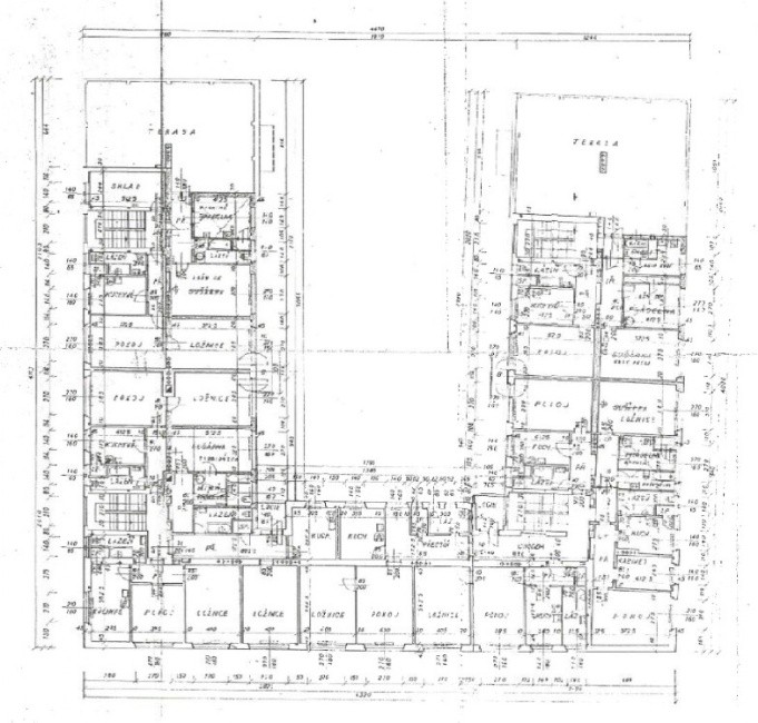
Volně stojící objekty na svažitém terénu; svými hmotami vytváří nároží ulice Lorencovy s ulicemi Kvítková a tř. T. Bati.
Objekty jsou podsklepeny, mají 6 - 7 etáží, plochou střechu s terasami. Domy jsou vystavěny na půdorysu písmene "U". Do dvora obou domů se vchází vysokými průchody ve spojovacích částech. V každém objektu jsou situována 4 dvojramenná schodiště (2 přístupná ze dvora, 2 z ulice), z nich jsou pak v každé etáži 2-3 vstupy do jednotlivých bytů.
Byty jsou jedno až třípokojové, vždy s předsíní, menší kuchyní se spíží a koupelnou s wc, některé s malým balkónem; v nejnižší etáži jsou umístěny sklepy, v nejvyšší pak prádelny, sušárny (dnes byty) a střešní terasy. Zajímavostí bylo umístění transformační stanice zásobující el. proudem část města v 1. etáži dvorního křídla domu č.p. 3346.
Mezi oběma domy architekt předpokládal ještě výstavbu tzv.technické radnice, která ale nebyla uskutečněna. Velmi strohá funkcionalistická architektura je akcentována nárožními vlajkovými stožáry, svislými pásy schodišťových sklobetonových rastrů a původně i vertikálami barevně odlišných pasů omítek.
Až pevnostní ráz těchto domů zakládá ve své urbanistické symetrii údolní kompoziční osu potvrzenou později výstavbou Morýsových a Drofových Věžových domů. Vynikající architektonický výraz dnes oslabuje barevné členění (nedávno svévolně změněné z vertikálního na horizontální) a výměna dřevěných dvojitých oken s větracími klapkami za plastová.
Aplikace Mobilní rozhlas
Chcete dostávat do svého mobilu či mailu upozornění na blížící se nebezpečí, odstávky, poruchy a výpadky energií, ankety, pozvánky na kulturní a sportovní akce?
© 2026 Magistrát města Zlína
všechna práva vyhrazena
Podněty k webovým stránkám
Kontakt: webmaster@zlin.eu
Podněty k webovým stránkám
Kontakt: webmaster@zlin.eu

Registruj se k odběru novinek
Zaregistrujte svou e-mailovou adresu k pravidelnému odběru aktuálních informací z našeho webu