Bytové domy
Autor: Miroslav Drofa
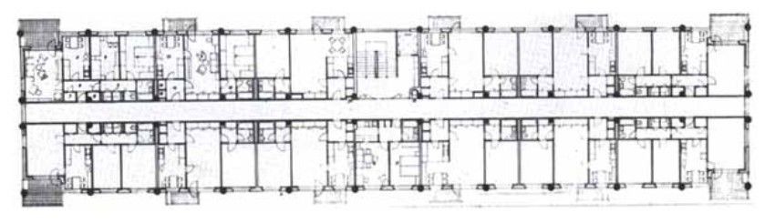
V téže době jako věžové domy (1947) byly postaveny dva osmietážové chodbové tzv. "Morýsovy domy" (podle tehdejšího starosty Zlína). Každý má téměř 100 bytů a vysoký obytný standard. Oba mají tvořit provozní celek. Proto se v přízemí jednoho domu zřizuje malá restaurace pro obyvatele a mateřská škola, v přízemí druhého jesle. Poslední etáže jsou upraveny jako rekreační terasy se společenskými místnostmi. Dispozičně se jedná o trojtrakt, tradiční skelet má užší střední pole. V každém domě je 60 bytů dvoupokojových o obytné ploše 68 m2, 30 bytů třípokojových o ploše 85 m2 a 7 menších bytů. Vnitřní příslušenství bytů je uměle odvětráváno. V architektuře byl uplatněn tradiční modulový rytmus. Fasáda je z cihelného spárovaného zdiva, čímž se dosahuje vnitřní příbuznosti s prvky tradiční zlínské architektury. Vnější výraz ovlivňují balkóny z betonových prefabrikátů. Věžovými a Morýsovými domy vytvořil Drofa v panorámatu východní části města novou páteř výškových dominant, která se v dalších letech propojila až k městskému centru.
Objekty jsou od roku 2001 zapsány na Seznam nemovitých kulturních památek.
Aplikace Mobilní rozhlas
Chcete dostávat do svého mobilu či mailu upozornění na blížící se nebezpečí, odstávky, poruchy a výpadky energií, ankety, pozvánky na kulturní a sportovní akce?
© 2026 Magistrát města Zlína
všechna práva vyhrazena
Podněty k webovým stránkám
Kontakt: webmaster@zlin.eu
Podněty k webovým stránkám
Kontakt: webmaster@zlin.eu

Registruj se k odběru novinek
Zaregistrujte svou e-mailovou adresu k pravidelnému odběru aktuálních informací z našeho webu