Doplňkové stavby ke čtvrtdomkům ve čtvrti Letná
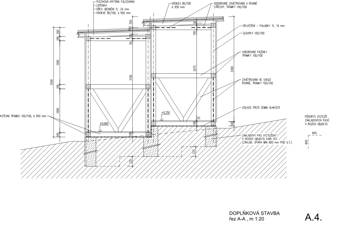
Doplňkovými stavbami rozumíme objekty, které doplňují funkci bydlení obvykle mimo bytovou stavbu. Lze mezi ně zařadit garáže, kůlny verandy, altány a sklady zahradního nářadí.
Tato regulační studie řeší možnost umístění doplňkových objektů – skladů zahradního nářadí – u čtvrtdomků a vybraných půldomků ve čtvrti Letná, dle mapového podkladu. Orgány památkové péče akceptují nezbytnost expanze funkčního prostoru obyvatel v baťovských čtvrtích, chtějí však kultivovanější formou nahradit současnou anarchii panující na jejich území a naprosto devastující tolik ceněnou zlínskou urbanistickou strukturu.
Dokumenty ke stažení ze složky Doplňkové stavby ke čtvrtdomkům ve čtvrti Letná
Array
(
[0] => App\Models\Entities\File Object
(
[_id] => MongoDB\BSON\ObjectId Object
(
[oid] => 6265f6e00b4f0000b30088a2
)
[chunkSize] => 261120
[filename] => 1lx5pdhyyuuh-doplnkove-stavby---letna.doc
[metadata] => Array
(
[extension] => doc
[mime] => application/msword
[customName] => DOPLŇKOVÉ STAVBY - LETNÁ
)
[length] => 39424
[uploadDate] => MongoDB\BSON\UTCDateTime Object
(
[milliseconds] => 1650849504931
)
[md5] => 708f51ba6270fda68aa19652a05ab154
)
[1] => App\Models\Entities\File Object
(
[_id] => MongoDB\BSON\ObjectId Object
(
[oid] => 6265f6e20b4f0000b30088ac
)
[chunkSize] => 261120
[filename] => hkrfhls8raly-let---cam01.jpg
[metadata] => Array
(
[extension] => jpg
[mime] => image/jpeg
[customName] => Let - cam01
)
[length] => 295958
[uploadDate] => MongoDB\BSON\UTCDateTime Object
(
[milliseconds] => 1650849506083
)
[md5] => b45649edbc87f859c33f509e70fe117e
)
[2] => App\Models\Entities\File Object
(
[_id] => MongoDB\BSON\ObjectId Object
(
[oid] => 6265f6e10b4f0000b30088a4
)
[chunkSize] => 261120
[filename] => b562bstblwwx-let---cam04.jpg
[metadata] => Array
(
[extension] => jpg
[mime] => image/jpeg
[customName] => Let - cam04
)
[length] => 61343
[uploadDate] => MongoDB\BSON\UTCDateTime Object
(
[milliseconds] => 1650849505146
)
[md5] => 4ed7fe23dd8206d4cd64248efb02ded7
)
[3] => App\Models\Entities\File Object
(
[_id] => MongoDB\BSON\ObjectId Object
(
[oid] => 6265f6e20b4f0000b30088af
)
[chunkSize] => 261120
[filename] => khwrmj8i9522-let---cam05.jpg
[metadata] => Array
(
[extension] => jpg
[mime] => image/jpeg
[customName] => Let - cam05
)
[length] => 68630
[uploadDate] => MongoDB\BSON\UTCDateTime Object
(
[milliseconds] => 1650849506319
)
[md5] => 3b742f5fc7166e7edadef7aea3059e56
)
[4] => App\Models\Entities\File Object
(
[_id] => MongoDB\BSON\ObjectId Object
(
[oid] => 6265f6e20b4f0000b30088b3
)
[chunkSize] => 261120
[filename] => uw9p7b18csa0-let---cam06.jpg
[metadata] => Array
(
[extension] => jpg
[mime] => image/jpeg
[customName] => Let - cam06
)
[length] => 59019
[uploadDate] => MongoDB\BSON\UTCDateTime Object
(
[milliseconds] => 1650849506822
)
[md5] => 31e39b300bc76bd2d3cf19135ec4e54e
)
[5] => App\Models\Entities\File Object
(
[_id] => MongoDB\BSON\ObjectId Object
(
[oid] => 6265f6e20b4f0000b30088b1
)
[chunkSize] => 261120
[filename] => lsdsijxvf950-pud.jpg
[metadata] => Array
(
[extension] => jpg
[mime] => image/jpeg
[customName] => pud
)
[length] => 188830
[uploadDate] => MongoDB\BSON\UTCDateTime Object
(
[milliseconds] => 1650849506585
)
[md5] => ecf091ae8639ba46f722c6fd29286beb
)
[6] => App\Models\Entities\File Object
(
[_id] => MongoDB\BSON\ObjectId Object
(
[oid] => 6265f6e10b4f0000b30088a8
)
[chunkSize] => 261120
[filename] => f6t48h2ybw3d-situace.pdf
[metadata] => Array
(
[extension] => pdf
[mime] => application/pdf
[customName] => SITUACE
)
[length] => 621562
[uploadDate] => MongoDB\BSON\UTCDateTime Object
(
[milliseconds] => 1650849505799
)
[md5] => 125a7ae781de5dd6a538f1b61fd671e0
)
[7] => App\Models\Entities\File Object
(
[_id] => MongoDB\BSON\ObjectId Object
(
[oid] => 6265f6e10b4f0000b30088a6
)
[chunkSize] => 261120
[filename] => c4fyjk7je2nl-rez.jpg
[metadata] => Array
(
[extension] => jpg
[mime] => image/jpeg
[customName] => řez
)
[length] => 167367
[uploadDate] => MongoDB\BSON\UTCDateTime Object
(
[milliseconds] => 1650849505396
)
[md5] => ba173606ae42519a827baf5bcc2dc1ee
)
)