Občanské stavby
Autor: Ing.arch. P. Hanulík
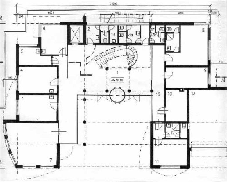
Oční centrum doplnilo volný pozemek ve stávající zástavbě městské části Zlín - Lazy. Jeho hmotové členění navazuje na vilovou zástavbu ulice Slovenské. Vytváří architektonicky bohatý celek, vycházející z principů funkcionalistické architektury s uplatněním soudobých stavebních materiálů (hliník, sklo, leštěná keramika). Objekt ve tvaru písmene "U" vytváří polouzavřený nástupní prostor, jasně vymezující orientaci návštěvníka a zároveň srovnává svažitý terén, který je v západní části ukončen opěrnou zdí, v části východní využit pro parkování. Budova je v celém půdorysu dvoupodlažní, bohatě členěná, v celkovém výrazu působí sevřeným dojmem. Za pozornost stojí i interiér stavby.
Aplikace Mobilní rozhlas
Chcete dostávat do svého mobilu či mailu upozornění na blížící se nebezpečí, odstávky, poruchy a výpadky energií, ankety, pozvánky na kulturní a sportovní akce?
© 2026 Magistrát města Zlína
všechna práva vyhrazena
Podněty k webovým stránkám
Kontakt: webmaster@zlin.eu
Podněty k webovým stránkám
Kontakt: webmaster@zlin.eu

Registruj se k odběru novinek
Zaregistrujte svou e-mailovou adresu k pravidelnému odběru aktuálních informací z našeho webu