Občanské stavby
Autor: Ing.arch. Ivan Bergmann
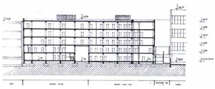
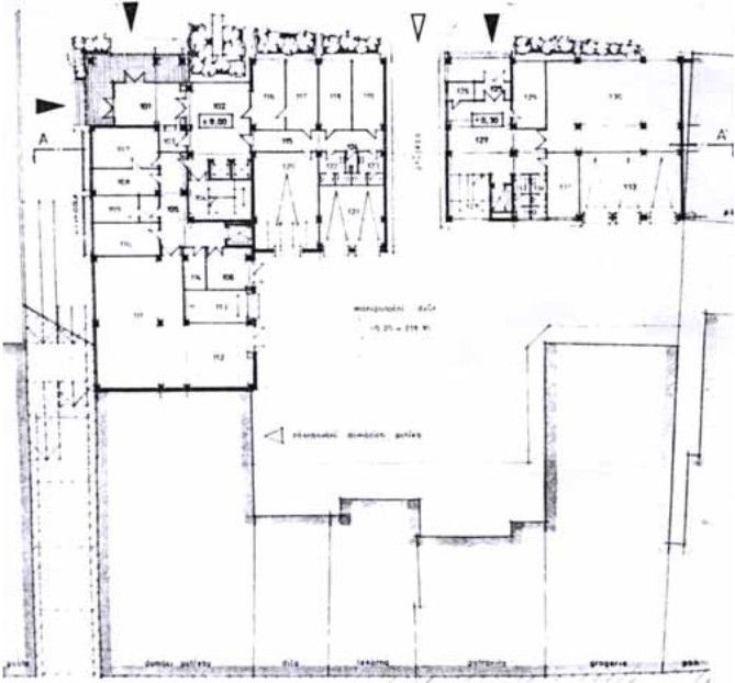
Ulice Zarámí se stává důležitou městskou tepnou. Právě zde, při zaústění do nám.Míru stojí objekt České pojišťovny. Výrazná hmota se žlutými rámy oken slouží jednak pojišťovně, jednak Průmyslovým stavbám. Obě instituce jsou pomyslně odděleny vysokým průjezdem do dvora. Ve zvýšeném přízemí jsou vstupní a komunikační prostory a technické zázemí objektu. Ve 2. - 4. NP jsou kanceláře, v 5. NP má pojišťovna zasedací místnost, archiv a jídelnu s bufetem.V roce 1986 byla budova nastavena o jedno patro s programem kancelářských prostor pro pojištění podnikatelské činnosti. Teprve touto nástavbou získal objekt ono vysoké měřítko kvality, kterým se Bergmannovy stavby ve Zlíně vyznačují.
V roce 2009 byla budova rekonstruována pro potřeby kanceláří Magistrátu města Zlína
Aplikace Mobilní rozhlas
Chcete dostávat do svého mobilu či mailu upozornění na blížící se nebezpečí, odstávky, poruchy a výpadky energií, ankety, pozvánky na kulturní a sportovní akce?
© 2026 Magistrát města Zlína
všechna práva vyhrazena
Podněty k webovým stránkám
Kontakt: webmaster@zlin.eu
Podněty k webovým stránkám
Kontakt: webmaster@zlin.eu

Registruj se k odběru novinek
Zaregistrujte svou e-mailovou adresu k pravidelnému odběru aktuálních informací z našeho webu