Občanské stavby
Autor: Miroslav Drofa, Štěpánka Lewisová, rekonstrukce: Centroprojekt a.s.,2008
Suterén budovy byl proveden již ve 40. letech jako spodní stavba nerealizovaného projektu sedmietážové vstupní budovy nemocnice z roku 1940 - 41 (autorů arch. Unkleina a Dohnala). Pro budovu je charakteristická kombinace symetrie a asymetrie. Symetrický "čestný dvůr" je předprostorem asymetricky umístěného hlavního vstupu, akcentovaného jediným dynamickým prvkem celé budovy - železobetonovým skořepinovým baldachýnem. Ten je protažen v podobě arkády jako přístřešek pro dva další vstupy (dětské oddělení), zároveň jako kryté stání pro kočárka. Menší baldachýn kryje také vchod z areálu nemocnice. Skořepiny prozrazují vliv (a možná i účast) brněnského statika Konráda Hrubana. Ostatní archtektonické články byly omezemy na okenní šambrány.
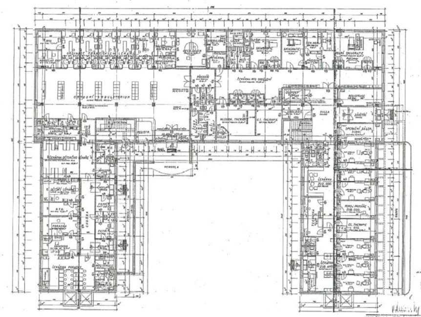
Pavilon je vystavěn na půdorysu písmene "U" otevřeného směrem k jihu. Z jihu přes nádvoří je také situován hlavní vstup do objektu; další přístup je z východní strany z areálu nemocnice. Všechna křídla jsou řešena jako třítraktová. Dispozice a provoz přízemí je oproti původnímu stavu pozměněn - v závislosti na aktuálním umístění jednotlivých oddělení a jejich provozních a plošných požadavcích.
Přízemí tvořilo ambulatorium. Některá jeho oddělení byla přístupná samostatnými vstupy přímo z nádvoří, všechna pak hlavním vstupem přes centrální halu (do níž ústil i vstup z areálu nemocnice). V západním křídle bylo umístěno onkologické a dětské oddělení - poradní a ambulantní s příručním RTG, čekárnami, registracemi, filtry, vyšetřovnami atd. Východní křídlo bylo využito jako oddělení čelistní a obličejové chirurgie a stomatologie.
Patro: nemocniční lůžková oddělení gerondologického centra a psychiatrie včetně potřebného zázemí (východní a západní křídlo 2x34 lůžek, severní křídlo 30 lůžek).
V roce 2008 byl pavilon rekonstruován a slouží jako onkologické centrum.
Aplikace Mobilní rozhlas
Chcete dostávat do svého mobilu či mailu upozornění na blížící se nebezpečí, odstávky, poruchy a výpadky energií, ankety, pozvánky na kulturní a sportovní akce?
© 2026 Magistrát města Zlína
všechna práva vyhrazena
Podněty k webovým stránkám
Kontakt: webmaster@zlin.eu
Podněty k webovým stránkám
Kontakt: webmaster@zlin.eu

Registruj se k odběru novinek
Zaregistrujte svou e-mailovou adresu k pravidelnému odběru aktuálních informací z našeho webu