Občanské stavby
Autor: Ing.arch. Jiří Kotásek, CSc
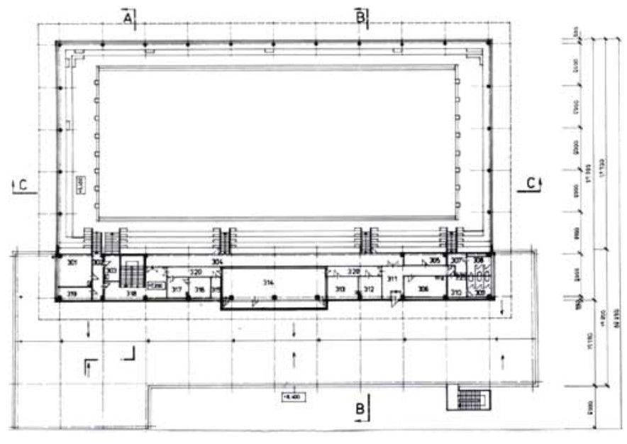
V roce 1950 byl ve Zlíně postaven 25 m dlouhý krytý bazén podle projektu arch. V. Karfíka. Už po dvaceti letech začaly vznikat úvahy o stavbě 50 m dlouhého bazénu. Ten byl realizován v roce 1985. Polohově navazuje na starý bazén, je sním propojen chodbou a mezi oběma krytými bazény je i jeden otevřený, venkovní. Vznikl tak ucelený plavecký areál ve výhodné poloze, navíc s vazbou na další sportovní zařízení (Stadion mládeže). Dispoziční řešení je velmi racionální. Jen bazénové hale by slušelo více prostoru po výšce. Také architektonické řešení je střízlivé s charakteristickou mohutnou předsazenou střechou a podnoží z pohledového betonu.
Aplikace Mobilní rozhlas
Chcete dostávat do svého mobilu či mailu upozornění na blížící se nebezpečí, odstávky, poruchy a výpadky energií, ankety, pozvánky na kulturní a sportovní akce?
© 2026 Magistrát města Zlína
všechna práva vyhrazena
Podněty k webovým stránkám
Kontakt: webmaster@zlin.eu
Podněty k webovým stránkám
Kontakt: webmaster@zlin.eu

Registruj se k odběru novinek
Zaregistrujte svou e-mailovou adresu k pravidelnému odběru aktuálních informací z našeho webu