Občanské stavby
Autor: ing.arch. Karel Havliš, M.A. Svatopluk Sládeček
Zadání Na místě proluky na náměstí Míru ve Zlíně stávala secesní stavba hotelu Balkán. Tento významný bod ve zlínské síti kulturních vztahů musel v 80. letech 20. stol. ustoupit výstavbě pošty v sousedství. Původní parcela při tom byla téměř neúnosně zúžena na šířku pouze 6,3 m při délce 60 m, a navíc jí byl po celé délce protažen kolektor o profilu 2x2 m.
Autoři připravovali projekt postupně pro dva stavebníky. Poprvé v roce 1997 a podruhé v roce 2003. Aby nebylo komplikací málo, požadavkem ze strany města bylo zachovat pěší propojení do ul. Zarámí, k čemuž proluka dosud sloužila, a zároveň navrhnout nový objekt tak, aby jeho schodiště umožnilo požární únik i ze sousedního domu. Kolektor byl důvodem pro založení novostavby na rošt, vykonzolovaný ze dvou řad vrtaných pilot, mezi nimiž kolektor probíhá. Zahájení stavby před zimou si vynutilo změnit betonové zdivo ve štítových stěnách, upravit konstrukci, podepřít konzolu, a hlavně vyřešit opláštění, do té doby uvažované jako omítané.
Popis stavby, konstrukce
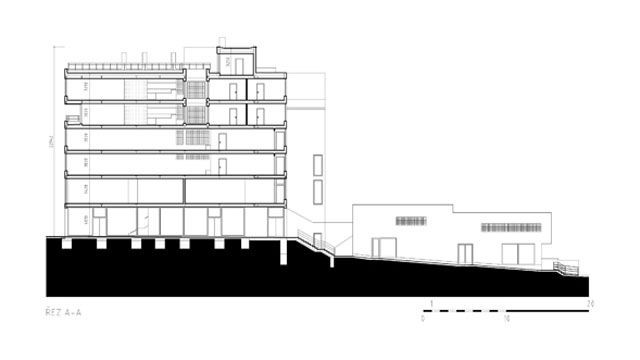
Stavba je rozdělena na dva objekty, SO 01 – šestipodlažní polyfunkční objekt se střešní nástavbou a pochozí terasou, plně vymezený plochou a hranicemi stavební parcely při ústí do nám. Míru – a SO 02 – dvoupodlažní objekt samostatných prodejen, zcela oddělený od provozu polyfunkčního domu, vymezující ústí pasáže polyfunkčního domu k ulici Zarámí. Oba objekty, i když nejsou spolu stavebně spojeny, tvoří jeden provozní a kompoziční celek.
SO 01 – Polyfunkční dům
Přízemí je koncipováno jako pasáž se vstupy do dvou samostatných mezonetových prodejen (1. a 2. NP) a se vstupem do vyšších podlaží objektu. Tam byly umístěny dvě kanceláře o výměře 136 m2 (3. a 4. NP) a dva byty. Byt v 5. NP o výměře 138 m2 je 3+kk s malou terasou, byt v 6. NP je mezonetový 3+kk s velkou střešní terasou v 7. NP.
Nosnou konstrukci domu tvoří ocelový rámový skelet založený na pilotách. Výplň mezi sloupy je z porobetonových tvárnic Ytong tl. 200 mm, z vnější strany zateplených 50 mm minerální vlny. Železobetonová výtahová šachta slouží jako ztužující prvek. Stropy jednotlivých podlaží jsou navrženy jako spřažené desky z VSŽ plechů, Kari sítě tl. 6. mm s oky 150/150 mm a s nadbetonováním z betonu Tř. B 20 Mpa.
Podhledy v celém objektu jsou z protipožárních desek Knauf GKF 12,5. Střešní konstrukce je navržena jako jednoplášťová obrácená střecha. Dvouramenné vnitřní schodiště na celou výšku objektu je železobetonové, vynášené obvodovou zdí a stropními průvlaky. Obvodový plášť byl navržen z profilovaného hliníkového plechu, osazeného na dřevěném roštu.
SO 02 – Samostatné prodejny
Dvoupodlažní objekt je rozdělen do dvou částí. "Horní", blíže polyfunkčnímu domu, ve které je umístěna přízemní prodejna se zázemím a technickými prostory ve 2. NP, a dvoupodlažní prodejna–cukrárna, orientovaná do ulice Zarámí.
Nosná konstrukce domu je navržena z tradiční zděné technologie z porobetonových tvárnic Ytong tl. 300 mm na maltu tenkovrstvou MVC 2,5 Mpa. Vnitřní stěny a příčky jsou také z porobetonových tvárnic Ytong. Objekt je založen na betonových pilotách. Stropy jsou žlb. – filigránové. Plochá střecha je navržena jako jednoplášťová inverzní střecha.
Aplikace Mobilní rozhlas
Chcete dostávat do svého mobilu či mailu upozornění na blížící se nebezpečí, odstávky, poruchy a výpadky energií, ankety, pozvánky na kulturní a sportovní akce?
© 2026 Magistrát města Zlína
všechna práva vyhrazena
Podněty k webovým stránkám
Kontakt: webmaster@zlin.eu
Podněty k webovým stránkám
Kontakt: webmaster@zlin.eu

Registruj se k odběru novinek
Zaregistrujte svou e-mailovou adresu k pravidelnému odběru aktuálních informací z našeho webu