Rodinné domy
Autor : Vladimír Karfík
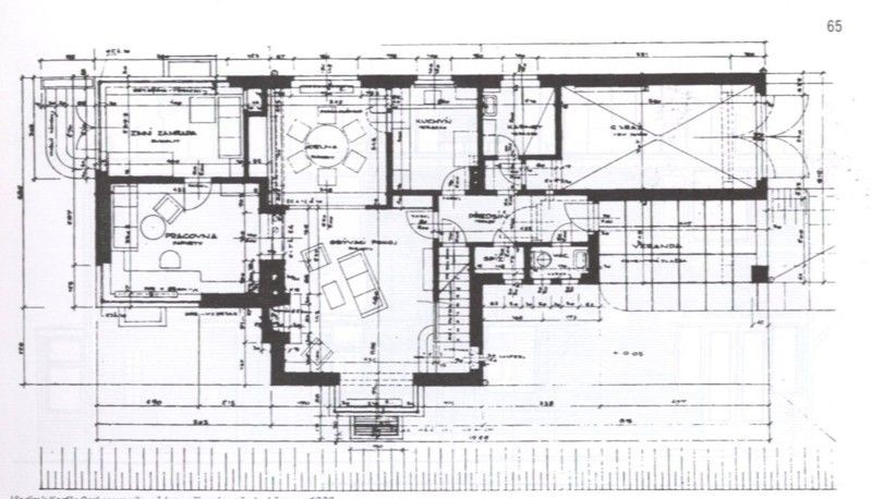
Vila Ludvíka Gerbece (vedoucího společnosti Baťa) patří mezi nejlepší díla V. Karfíka. Rozbíhání hmot do otevřeného prostoru a jejich horizontální ukončení plochými římsami upomíná na prérijní domy F. L. Wrighta. Kompozičně vytříbený celek domu je poznamenán řadou utilitárních úprav a přístaveb. V roce 1937 byla kolaudována první verze domu ještě bez arkýře a západní hmoty s terasou. Teprve druhá etapa stavby rozšiřující dispozici o pracovnu, zimní zahradu, terasu, arkýř a krb přinesla stavbě wrightovskou dynamiku a vyváženost hmot. Stavba využívá tradičního spárovaného zdiva, ale zvláštností je nízká valbová střecha s plochými okapy. Dnes je vila různými stavebními úpravami (např. zimní zahrada byla přistavěna do výšky prvního patra, o bílých prkénkových přístavbách vstupu raději nemluvě) dosti znehodnocena. Slouží dnes jako centrum pečovatelských služeb.
Objekt je od roku 2001 zapsán na Seznam nemovitých kulturních památek.
Aplikace Mobilní rozhlas
Chcete dostávat do svého mobilu či mailu upozornění na blížící se nebezpečí, odstávky, poruchy a výpadky energií, ankety, pozvánky na kulturní a sportovní akce?
© 2026 Magistrát města Zlína
všechna práva vyhrazena
Podněty k webovým stránkám
Kontakt: webmaster@zlin.eu
Podněty k webovým stránkám
Kontakt: webmaster@zlin.eu

Registruj se k odběru novinek
Zaregistrujte svou e-mailovou adresu k pravidelnému odběru aktuálních informací z našeho webu