Veřejné architektonické soutěže - výsledky
Mezinárodní soutěž probíhala formou soutěžního dialogu. Bylo osloveno šest týmů, které byly vybrány z přihlášených zájemců na základě dosavadních zkušeností s prací na podobných projektech.S jednotlivými vybranými týmy, byl následně zahájet soutěžní dialog, během kterého byla postupně zpřesňována podoba jednotlivých návrhů. V soutěžní porotě usedly kromě zástupců města také odborníci, belgický architekt Pierre Hebbelinck, teoretik architektury profesor Vladimír Šlapeta, slovenský architekt Martin Jančok, zlínská architektka Jitka Ressová a kunsthistorička Jana Kostelecká.
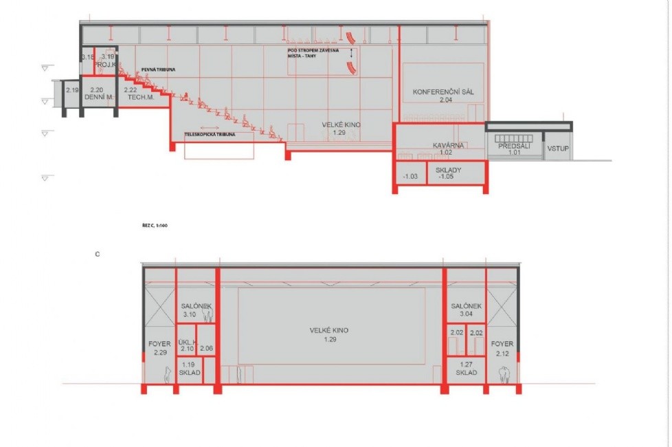
Památkově chráněná budova prošla od svého vzniku v roce 1932 řadou přestaveb, během kterých se postupně zmenšila její kapacita z původních více než 2500 míst na méně než tisíc. Stavba je unikátní díky své svařované ocelové konstrukci, použité v takovém rozsahu vůbec poprvé na území tehdejšího Československa.Velké kino bylo staticky dimenzováno jako stavba provizovní, budova pak utrpěla několik zásahů při bombardování Zlína na sklonku druhé světové války. Během pozdějších přestaveb bylo neúměrně zvýšeno zatížení nosné konstrukce, do které bylo navíc neodborně zasahováno. V důsledku těchto okolností bylo kino v roce 2016 na základě odborného statického posudku uzavřeno.
Záměrem bylo realizovat revitalizaci Velkého kina, která zajistí dlouhodobou funkčnost a udržitelnost jeho provozu. Návrhem a následovně projektem mají být splněny nároky na kvalitní užitné prostředí a poskytované služby vedle hospodárného užití investičních prostředků, minimalizaci provozních nákladů na energie, údržbu a opravy využitím vhodných materiálů, technologií, řídících, bezpečnostních a informačních systémů.
Revitalizace Velkého kina ve Zlíně má být navržena tak, aby zajistila celoroční provoz tohoto nejvýznamnějšího kina v České republice, a to při splnění soudobých požadavků na provozování kina a umožní i další doplňkové provozy kina, jako jsou semináře, konference, přehlídky, koncerty. Kromě těchto doplňkových provozů kina má být nutné zajistit funkčnost hlavního sálu i pro provozy, které nejsou spjaty přímo s projekcí, ať jsou to konference, divadelní vystoupení nebo koncertní a podobné provozy. Revitalizace kina má vytvořit dostatečné zázemí pro uvedené provozy, a navíc zajistit provoz denního charakteru, ať se jedná o prodejnu spojenou s kinem, kavárnu či jiný gastronomický provoz.
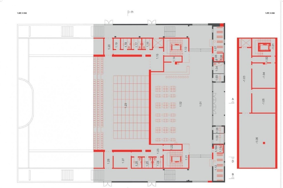
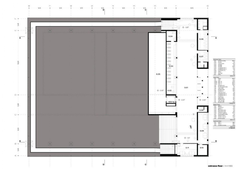
1. místo
Autor: re:architekti studio
Architekti: Michal Kuzemenský, David Pavlišta, Ondřej Synek, Jan Vlach, Jiří Žid, Michaela Hudečková, Vojtěch Ružbatský, Dušan Sabol, Alžběta Widholmová
Krajinářská architektura: Symbio studio (Pavla Drbalová, Marie Gelová, Sandra Chlebovská)
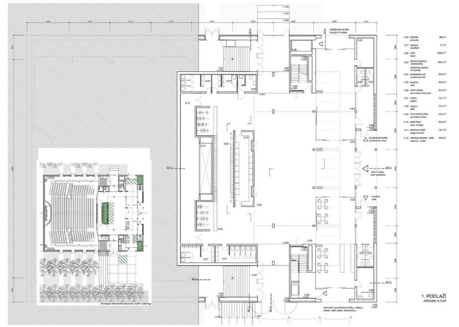
2. místo
Autor: Építész Stúdió
Architekti a krajinářská úprava: Tamás Fialovszky, Gergely Kenéz, Iván Nagy, Katalin Varga
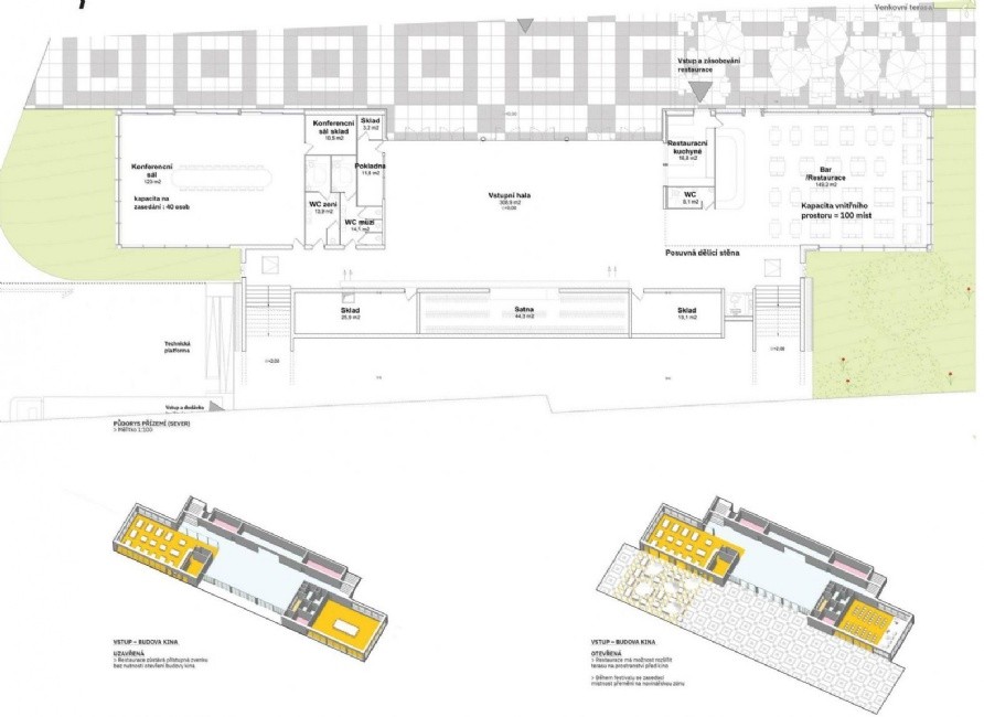
3. místo
Autor: A B.K.P.Š. Architekti: Martin Kusý, Pavel Paňák, Matin Kusý ml., Róbert Bakyta Spolupráce: Tatiana Kuva, Ľubomíra Blašková, Michal Pacher, Richard Kereškényi, Mária Horváthová, Dominika Húdoková, Ján Křižík, Stanislav Žaludek
4. místo
Autor: Petr Hájek ARCHITEKTI
Architekti: Petr Hájek, Martin Stoss, Nikoleta Slováková, Benedikt Markel
5. místo
Autor: ov architekti
Architekti: Štěpán Valouch, Jiří Opočenský
Spolupráce: Romana Bedrunková, Marek Kohout, Ondřej Králík, Jakub Neumann, Františka Podzimková, Viktor Žák
6. místo
Autor: Christophe Hutin Architecture Architekti: Christophe Hutin, Stéphanie Gasparini, Antoine Mounier Spolupráce: Eva Pavlečková
Aplikace Mobilní rozhlas
Chcete dostávat do svého mobilu či mailu upozornění na blížící se nebezpečí, odstávky, poruchy a výpadky energií, ankety, pozvánky na kulturní a sportovní akce?
© 2026 Magistrát města Zlína
všechna práva vyhrazena
Podněty k webovým stránkám
Kontakt: webmaster@zlin.eu
Podněty k webovým stránkám
Kontakt: webmaster@zlin.eu

Registruj se k odběru novinek
Zaregistrujte svou e-mailovou adresu k pravidelnému odběru aktuálních informací z našeho webu